Footing Design: Raft or Isolated?

Footing design: Raft or isolated?

This project is a comparison between the 2 most commonly used types of foundation: Raft (or mat) and isolated (or spread) footing.

You will find out the differences between these 2 types to know how to choose the correct type for a building (Figures 1 and 2).

Figure 1: Isolated footings.

Figure 2: Raft foundation.

The foundation is the structural element that connects a building or any structure to the ground (Fig. 3).

Figure 3: Foundation of a building.

There are different types of foundations that you can use for a structure as you can see in figure 4, but each one has special uses, and you have to know how to choose the correct foundation type for your structure.

Figure 4: Types of foundation from ACI 318-19 code.

Table 1: How to decide which footing type is better.

 

Isolated footing

Raft footing

Soil bearing capacity

Use isolated footing if you have a very good soil bearing capacity > 100 Kpa.

Low soil bearing capacity.

Area of isolated footing

Use isolated footing if their area is < 0.5 * area of the building.

> 0.5 * area of the building.

Building height

Building height < 20 m

(7 floors as maximum).

Used in moderate height buildings not very height.

Advantages of Isolated Footing:

1.     Economical when columns are placed at longer distances.

2.     Workmen with little or no knowledge can easily construct.

3.  Ease of Constructability: Excavation, Form-work, Reinforcement placement, and placing of Concrete are at ease.

Advantages of Raft Foundation:

1.     Mat footing can be provided where the shallow foundation is necessary and when the soil is poor.

2.     Mat foundation requires less earth excavation.

Table 2: Differences in the design between raft foundation and isolated foundation:

 

Isolated footing

Raft footing

Tension

@ Bottom

@ Top

Compression

@ Top

@ Bottom

Main bars

@ Bottom

@ Top


Figure 5: Design of isolated and raft foundation.

Differences in the design between isolated and raft foundations:

Ø  Isolated foundation left and right parts are like a cantilever beam, that is exposed to soil load from the bottom.

This cantilever will move to the top, and you will have tension at the bottom and compression at the top (Fig.5).

And as you know that concrete is weak in tension and strong in compression, the main reinforcement in an isolated footing will be at the bottom.

You can add minimum reinforcement at the top.

 

Ø  Raft foundation is like a continuous beam exposed to uniform soil load at the bottom, and the load from the columns is like the supports of the beam (like an inverted beam).

As a result, you will have at all the mid spans: tension at top and compression at bottom, so the main reinforcement in a raft foundation will be at the top.

But at support, you will have tension at the bottom, so the main reinforcement will be at the bottom.

And by practice, at the site, the same top and bottom reinforcements are used in the raft foundation (Fig 9).

Additional reinforcements are always added to the columns (Fig.8).

Figure 6: Raft foundation drawing using SAFE software.

Figure 7: Raft foundation design using SAFE software.

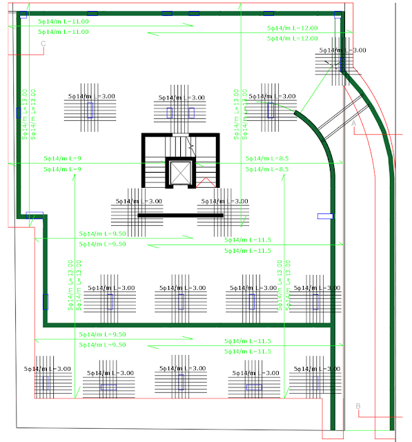
Figure 8: Raft foundation AUTOCAD plan.

·        The raft foundation area in figure 8 is the red perimeter, where we have uniform reinforcements of 5T14 /m for top and bottom reinforcements in the 2 directions.

Additional reinforcement is added to the columns.

Figure 9: Raft foundation AUTOCAD section.

Figure 10: Raft foundation reinforcements.

Figure 11: Raft foundation casting.

Figure 12: Isolated footings (connected by tie beams to prevent differential settlement), drawing is on SAFE software.


Figure 13: Isolated footing design on SAFE software.

Figure 14: Isolated footing AUTOCAD plan view.

Figure 15: Isolated footing AUTOCAD section.

Figure 16: Isolated footing reinforcement.

As you can see in figure 16, in isolated footing you don't need top reinforcement. But you can add minimum top reinforcement to the columns.

Figure 17: Isolated footing reinforcement with top reinforcement.

Figure 18: Isolated footing casting.

Once you finished the design, you can draw the foundation using Revit Software (Figure 19), or simply on AUTOCAD.

Figure 19: Isolated footing drawing on Revit software.


Conclusion:

The foundation is the first structural element built in any structure,  there are also different types of foundation that a civil engineer should know how to design and when to use them. 

Comments